Trang chủ
Giới thiệu
LĨNH VỰC HOẠT ĐỘNG
SẢN XUẤT CƠ KHÍ
GIAO THÔNG ĐƯỜNG BỘ
THI CÔNG SÂN THỂ THAO
SƠN EPOXY NHÀ XƯỞNG
Dự án
SẢN XUẤT CƠ KHÍ
THI CÔNG GIAO THÔNG
THI CÔNG SÂN THỂ THAO
THI CÔNG EPOXY
TIN TỨC
Liên hệ
CÔNG TY NAM PHÁT KÍNH CHÀO QUÝ KHÁCH
Địa chỉ: 870 Tỉnh Lộ 43, Khu Phố 1, Phường Tam Bình, Thành phố Hồ Chí Minh, Việt Nam
CSKH
8:00 - 17:00
Trang chủ
Giới thiệu
LĨNH VỰC HOẠT ĐỘNG
SẢN XUẤT CƠ KHÍ
GIAO THÔNG ĐƯỜNG BỘ
THI CÔNG SÂN THỂ THAO
SƠN EPOXY NHÀ XƯỞNG
Dự án
SẢN XUẤT CƠ KHÍ
THI CÔNG GIAO THÔNG
THI CÔNG SÂN THỂ THAO
THI CÔNG EPOXY
TIN TỨC
Liên hệ
0917787428
LĨNH VỰC HOẠT ĐỘNG
Trang chủ
/
LĨNH VỰC HOẠT ĐỘNG
22
Tháng 02
Trụ đèn chiếu sáng
22/02/2026 |
Đăng bởi admin
Trụ đèn chiếu sáng hay trụ đèn cao áp (trụ đèn đường) được sử dụng để lắp đặt đèn cao áp chiếu sáng cho các khu vực rộng lớn như đường phố, sân vận động, bến cảng, sân bay, công viên,…. Trụ đèn chiếu sáng thường được làm bằng thép mạ kẽm nhúng nóng để chống oxi hóa, chống gỉ và bền bỉ theo thời gian.
22
Tháng 02
Cột Đèn Giao Thông Chớp Vàng
22/02/2026 |
Đăng bởi admin
Cột đèn giao thông chớp vàng là một thiết bị báo hiệu giao thông quen thuộc, đóng vai trò quan trọng trong việc đảm bảo an toàn cho người tham gia giao thông.
22
Tháng 02
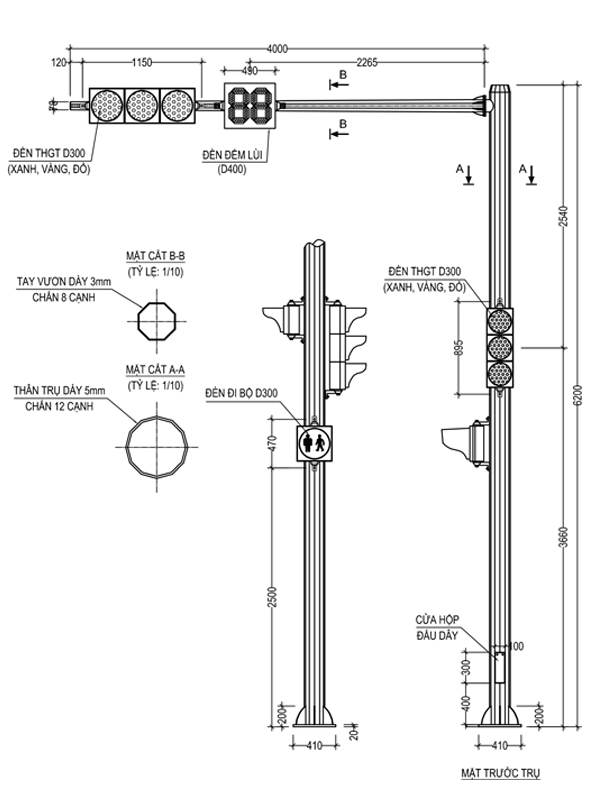
Cột Đèn Tín Hiệu Giao Thông
22/02/2026 |
Đăng bởi admin
Cột đèn tín hiệu giao thông, hay còn gọi là cột đèn giao thông, là thiết bị không thể thiếu tại các ngã tư, ngã ba đường phố. Chúng đóng vai trò quan trọng trong việc điều tiết giao thông, đảm bảo an toàn cho người tham gia giao thông và góp phần xây dựng văn hóa giao thông.
LĨNH VỰC HOẠT ĐỘNG mới
Trụ đèn chiếu sáng
Sun 02, 2026
Cột Đèn Giao Thông Chớp Vàng
Sun 02, 2026
Cột Đèn Tín Hiệu Giao Thông
Sun 02, 2026
LĨNH VỰC HOẠT ĐỘNG nổi bật
0917787428